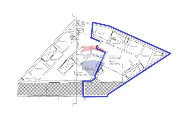
Centrally located in Victoria, Gozo and within the UCA, this penthouse offers a well-planned layout featuring a combined kitchen, dining, and living area, three double bedrooms (two leading to a balcony, with the main bedroom enjoying an en-suite), a main bathroom, and a large front terrace ideal for outdoor living. The property is being sold in shell form, offering buyers the opportunity to finish it to their own taste.
Contact Us
Get In Touch
Contact us today! Whether looking to buy, sell, or rent property in Malta, our real estate professionals will respond as soon as possible.
Tel Number
+356 22471300
Address
JK Properties Office, Level 1,
Ferris Street University Roundabout,
Msida MSD 1751, Malta
Inquire About Property
Similar Properties
Similar properties you may like
Penthouse For Sale
In Qormi
QORMI - PENTHOUSE - Situated in a new smart block, close to all amenities. This accommodation consists of an Open-plan K...
Penthouse For Sale
In Qormi
QORMI - Penthouse Excluding airspace being proposed in shell form, located in the heart of this sought after village. O...
Penthouse For Sale
In Gozo - Xewkija
This spacious fourth floor PENTHOUSE is located in quiet residential part of a charming village of Xewkija. Layout compr...


